PASSIVWOHNHAUSANLAGE KOMMUNALER WOHNBAU ANDERS | Floßlendstraße 13-15, Graz
|
AUFTRAGSART Direktauftrag BAUTRÄGER ENW, Gemeinnützige Wohnungsgesellschaft m.b.H., Graz PLANUNG 2010-2012 FERTIGSTELLUNG Mai 2013 BÜROLEISTUNG Vorstudie |
AUFGABE | Basierend auf der Studie „kommunaler Wohnbau anders“ und dem dabei entwickelten Masterplan (2009, Autorin: Architektin Lechner und Partner) errichtet die Stadt Graz das erste Passivwohnhaus im Übertragungswohnbau BACKGROUND | Mit dem Projekt Wohnbau anders wurden im Grazer Übertragungswohnbau inhaltlich und organisatorisch neue Wege beschritten. Im Vorfeld beauftragte das Wohnungsamtder Stadt Graz Architektin E. Lechner mit der Studie „kommunaler Wohnbau anDers“. ZIELE DER STUDIE | Qualitätsvoller Wohnbau definiert sich durch ein optimiertes Zusammenspiel aus alltagsgerechten Grundrissen, komfortabler Erschließung, die private Wohnungergänzende Gemeinschaftsräume und vielfältig nutzbare Freiräume und reagiert auf soziodemografische Entwicklungen. Qualitätsvoller Wohnbau integriert sich in den Stadtteil und stellt eine Bereicherung für diesen dar - nicht eine Parzelle wird bebaut sondern ein Quartier wird gestaltet. Integrierende Architektur- und Freiraumplanung können eine Präventivmaßnahme zur Vermeidung sozialer und nachbarschaftlicher Konflikte darstellen. Bezogen auf das konkrete Grundstück und den urbanen, nachbarschaftlichen Kontext wurde eine optimierte Gebäudestellung, die Anordnung von vielfältig nutzbaren Freiflächen, Gemeinschafts- und Serviceeinrichtungen untersucht und ein Masterplan mit städtebaulichen und inhaltlichen Empfehlungen erstellt.
KONZEPT | Umsetzung des Masterplans und seiner inhaltlichen Ziele. Durch Engagement des Bauherren und intensive Projektentwicklungsarbeit werden die städtebaulichen Rahmenbedingungen zugunsten
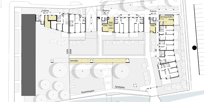
einer geschlossen Bebauung geändert. Die Nachbargenossenschaft GWS wird gewonnen, am Nachbargrundstück ein Lückenschlussprojekt zu realisieren. Damit wird ein wesentliches Ziel der
Studie - der ruhige nachbarschaftliche Wohnhof – realisierbar.
Beide Gebäude werden sowohl von der städtebaulichen Linienführung als auch vom architektonischen Erscheinungsbild her als Einheit entwickelt. Aufnahme und Modulierung der vorhandenen
Bauflucht- und Straßenfluchtlinien, Raumbildung entlang der Floßlendstraße, großzügige, halböffentliche Zonen als Übergang und Distanz zum frequentierten Straßenraum. Die Straßenfassade
stellt sich in Beziehung zur Fassade eines dominanten Wohnblocks (Muchitschhof). PILOTPROJEKT NACHBARSCHAFTSPARK | Eine 630 m² große Teilfläche des Grundstücks angrenzend an den Naturraum Schleifbach und die am straßenseitigen Ufer des Baches gelegene 450 m² bisher ungenutzte Fläche werden als Nachbarschaftspark in Form eines Pocketparks konzipiert. Grundstücksgröße: 4110 m2 BGF: 4105 m2, Bebauungsdichte : 1,0 43 barrierefreie Wohnungen (von 44 bis 93 m2, davon 2 Behindertenwohnungen, 2 Studentenwohnungen), 1 Gemeinschaftsraum Tiefgarage mit 44 Stellplätzen 400 m2 Kinderspielbereich 1080 m2 halböffentlicher Pocketpark Gesamtbaukosten 5.987.800,-- € |

